Warning: SessionHandler::read(): open(/var/www/100500kotlov.ru/data/mod-tmp/sess_437719c02089df293f1758731abb8e87, O_RDWR) failed: No space left on device (28) in /var/www/100500kotlov.ru/data/www/kotlom.ru/vendor/symfony/http-foundation/Session/Storage/Proxy/SessionHandlerProxy.php on line 59
Котёл КВм-0,9 на древесных отходах — купить в Чите по ЦЕНЕ 425000 рублей
В наличии на складе

Котёл КВм-0,9 на древесных отходах

Цена
425 000 р.
Доставляем Отопительные котлы
в г. Чита

Кратко о характеристиках

Отапливаемый объем, м³24300
Расход топлива, кг/ч189
Вид топкиШнековая подача
ТопливоДрова

Дровяной водогрейный котел КВм-0,9 в Севастополе используется в стационарных и модульных котельных для получения горячей воды на нужды отопления и водоснабжения. Очень экономичен за счет системы полноценного сжигания топлива и его дешевизны. Оснащен механической топкой, что автоматизирует топливоподачу, а система дополнительной подачи воздуха повышает КПД котла до 90%.

Характеристики

Аэродинамическое сопротивление, Па (мм. вод. ст.)
210
Конвективная поверхность нагрева, м²
32.6
Цена, руб.
425000
КПД, не менее, %
82
Масса котла (без воды), кг
3400
Массовый расход уходящих газов, кг/с
0.53
Мощность (кВт), кВт
900
Мощность, Гкал
0.78
Мощность, МВт
0.9
Низшая теплота сгорания топлива, кКал/кг
5000
Площадь отопления, м²
9000
Отапливаемый объем, м³
24300
Радиационная поверхность нагрева, м²
13.2
Расход теплоносителя среды, м³/ч
31
Расход топлива, кг/ч
189
Расчетный срок службы, не менее, лет
10
Расход условного топлива, кг/ч
135
Температура воды на входе в котёл, не менее, °C
60
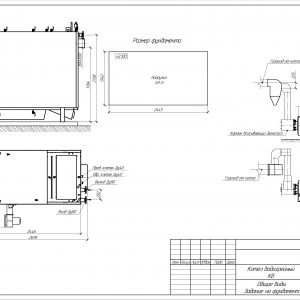
Габаритные размеры (ДхШ), мм
5050х1350х2850
Гидравлическое сопротивление при перепаде t, МПа (кгс/cм²)
0,08
Давление рабочей среды, МПа (кгс/cм²)
0,6
Класс котла
1
Номинальное разрежение в топке при работе, Па
20…60
Рабочий график, С 70/95
Температура уходящих газов, °C
170…250
Тяга
Принудительная - дымосос ДН-6,3
Вид топки
Шнековая подача, Шнековая подача с ворошителем
Топливо
Дрова, Щепа, Опил, Кора
Содержание нормативных вредных выбросов
оксида углерода СО мг/м3 - 3600 оксида азота в пересчете на NO2, мг/м3 - 500 твердых частиц, кг/ч - 0,05
Тип
КВм
Комплект
Котёл КВм-0,9 на древесных отходах
Котёл КВм-0,9 на древесных отходах
1 штука
Запорная арматура
1 штука
Клапан предохранительный
1 штука
Клапан обратный
1 штука
Термометры в оправе
1 штука
Манометры
1 штука
Краны трехходовые Ду-15
1 штука
Вентили дренажные Ду-20
1 штука
Вентили воздушные Ду-15
1 штука
Как все происходит
на видео
Смотреть видео галерею
Возникли
вопросы?
Закажите консультацию
Или позвоните
8 (800) 551-45-60
Ответим на вопросы
Расскажем о скидках
Презентуем товар
Поможем выбрать
Доставляем Отопительные котлы
в г. Чита

Устройство и принцип работы

Дровяной котел КВм-0,9 — это водогрейных механический котел, состоящий из блока топки, системы трубопроводы и теплоизоляционного каркаса. Топливо загружается в бункер, откуда механическим путем попадает в топку. Начинается процесс горения, в результате которого нагревается энергоноситель в трубопроводной системе. Нагретая вода может использоваться потребителями для обеспечения нужд отопления и горячего водоснабжения.

Газы, образовавшиеся в процессе горения, дважды проходят через конвективную часть, полностью отдают тепло и выводятся. Зола, образовавшийся в результате горения, выводится из системы механическим способом.

Особенности и преимущества

  • Высокий показатель КПД;
  • Развитая конвективная поверхность, способствующая увеличению срока службы оборудования;
  • Отсутствие водоподготовки;
  • Автоматизация топливоподачи и золовыведения;
  • Системы сжигания топлива, адаптированные специально под ДВО;
  • Компактный размер.

Размещение и установка

Дровяной котел КВм-0,9 устанавливается на фундамент и крепится анкерными болтами. Далее к нему монтируется топка и системы автоматизации, если таковые имеются. Важно установить котел ровно, используя уровень, и обеспечить доступ воздуха к системам воздухоподачи.

Собранный котел подключается к системам водоснабжения, на него устанавливается запорная арматура и КИП. Финальной стадией сборки является монтаж газовыводящей системы и установка элементов управления. После проверки сборки котла и его тестового запуска, котел готов к эксплуатации.

Эксплуатация и техническое обслуживание

За счет механической топки и системы золоотведения, дровяной котел КВм-0,9 работает автономно. Все ремонтные работы, включая технические осмотры, должны проводиться квалифицированными специалистами, которые имеют специальное разрешение. При организации технического обслуживания следует учитывать требования «Правил устройства и безопасной эксплуатации паровых и водогрейных котлов».

Следите за новостями в социальных сетях
Наши цифры
скажут за нас все
10
Срок эксплуатации оборудования – более десяти лет
20
Двадцать лет
трудимся для вас
10
Меньше десяти дней
на изготовление товара
500
Более пятисот
точек поставки
Вы смотрели